1056 Queen Street
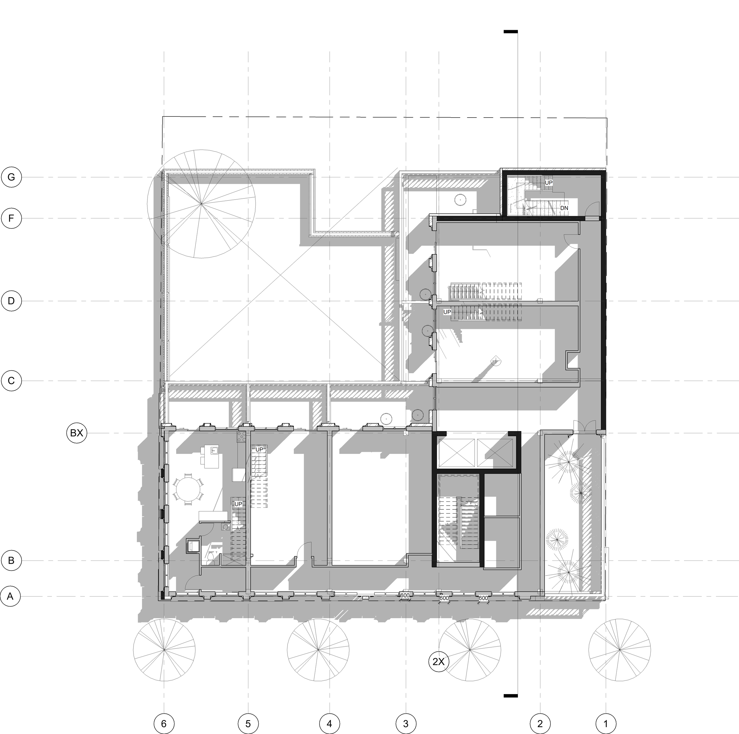
1056 Queen St. West is a new look for an existing site. Located at West Queen West, in a neighborhood that contains structures including The Drake Hotel and the Gladstone, local architecture reflects the history of the area. Addressing the need of additional housing, 1056 Queen provides a housing community while preserving architectural aspects of the neighborhood. Red brick façade with neo-classical features touches upon the areas roots without sacrificing modern techniques. A pre-existing tree on the sight has become the focal point of the design as all units face in the direction.
The units in this building are a fusion of townhouses and condos. Two storey and three storey designs allow for more space that is normally found in metropolitan areas. Green roofs double as balconies and help control building temperatures and aid in water management. Each unit is connected by a loaded corridor, to simulate a neighborhood or laneway. The courtyard feature cements the feel of a small community.
